Zahradní ocelová volně stojící bioklimatická pergola o rozměrech 4 x 3 metry představuje ideální způsob zastřešení Vašeho venkovního posezení.
Pevná a stabilní konstrukce v antracitové barvě RAL 7016, v matné povrchové úpravě se hodí do každého prostoru, není zapotřebí vrtat do stěny. Sloupky a nosníky jsou vyrobené z vysoce kvalitní oceli, která je ošetřena práškovou barvou. Lamely jsou z pozinkované oceli, která byla následně ošetřena práškovou barvou, což zaručuje odolnost vůči povětrnostním vlivům.

25 nastavitelných otočných lamel Vás ochrání nejen před sluncem, ale i před deštěm. Lamely lze otáčet od 0°, kdy docílíte úplně uzavřené střechy až do 90°.
Lamely lze ovládat jednoduše manuálně pomocí kličky. Ta je navržena tak, aby šla jednoduše naklonit, aby při otáčení lamel nedocházelo k poškrábání konstrukce pergoly. Zároveň je klička na konstrukci umístěna tak, aby při doplnění pergoly o zástěny či panely nebránila ve snadné manipulaci s těmito doplňky.

Ke svodu vody dochází unikátním drenážním systémem přímo uvnitř konstrukce. Lamely jsou schopné odvést opravdu velké množství deště až 17 l/m2 za hodinu. V zimních měsících je zapotřebí ponechat lamely ve svislé pozici. I přesto jsou lamely schopné unést 10-15 centimetrovou vrstvu sněhu, což představuje zátěž přibližně 30 kg/m2. Toto zatížení však nemůže být dlouhodobé.
Dodejte své pergole ECO 4x3m a hlavně sobě větší komfort, soukromí a ochranu s praktickým setem závěsů a moskytiér (číslo produktu: ZMECO043)
Díky skvělým vlastnostem, detailnímu zpracování a modernímu designu bioklimatické pergoly využijete venkovní posezení mnohem častěji.
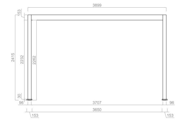
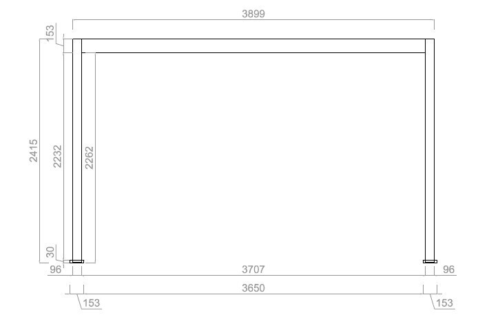
Sloupek má rozměry 96x96 mm, při instalaci je zapotřebí počítat s patkou sloupku o rozměrech 146x146 mm. Patka je z 4 mm silné oceli a je navíc zakryta hliníkovým krytem (153x153 mm) s integrovaným drenážním systémem.
S bioklimatickou pergolou si můžete užívat maximum slunečních paprsků, zároveň se můžete proti těmto paprskům i chránit správným nastavením lamel. Pergola též umožňuje snadnou ventilaci prostoru a naopak dokonalý přístřešek v případě deště.

HLAVNÍ VÝHODY